Home
關於我們
作品介紹
創意空間
報章雜誌
短片播放
獎項榮譽
FAQ
聯絡我們
Search for:
Search for:
Home
關於我們
作品介紹
創意空間
報章雜誌
短片播放
獎項榮譽
FAQ
聯絡我們
預約熱線
聯絡我們
紅磡黃埔花園12期家居庭地下G44號舖
hello@bossdesign.hk
+852-23456773
Facebook-f
Instagram
Whatsapp
Youtube
Weixin
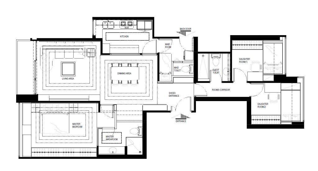
半山壹號 Celestial Heights -1636sqft
屋苑名稱 :
半山壹號
項目類型:
住宅
居住人數:
4-5
面積 :
1636平方尺
風格:
豪華設計
設計師:
D WONG
豪華設計。大將之風
整個空間採用柔和的棕色與卡其色,大門玄關之神壇牆背採用棗紅色牆紙配合金色神像,莊嚴帶一點高貴,但整體格局又不會格格不入。以大理石的天然紋路作電視背景牆,優雅高級,再將地面與桌面加以協調統一,搭配個性立體天花燈及罕見的直型滲光圍身牆設計,營造奢華的氛圍。
[30ft
2
]
睡房
[22ft
2
]
洗手間
[28ft
2
]
客飯廳
[15ft
2
]
廚房
帝峰皇殿 The Hermitage -1552sqft
[ 住宅 ]
海逸豪園 Laguna Verde -1481sqft
[ 住宅 ]
Related Projects
帝滙豪庭 Wellesley – 1,735sqft
住宅
海逸豪園 Laguna Verde -1067sqft
住宅
紅山半島 Redhill Peninsula – 2,760sqft
住宅
Select Language
Arabic
Chinese (Simplified)
Chinese (Traditional)
Dutch
English
French
German
Hindi
Italian
Japanese
Portuguese
Russian
Spanish