Home
關於我們
作品介紹
創意空間
報章雜誌
短片播放
獎項榮譽
FAQ
聯絡我們
Search for:
Search for:
Home
關於我們
作品介紹
創意空間
報章雜誌
短片播放
獎項榮譽
FAQ
聯絡我們
預約熱線
聯絡我們
紅磡黃埔花園12期家居庭地下G44號舖
hello@bossdesign.hk
+852-23456773
Facebook-f
Instagram
Whatsapp
Youtube
Weixin
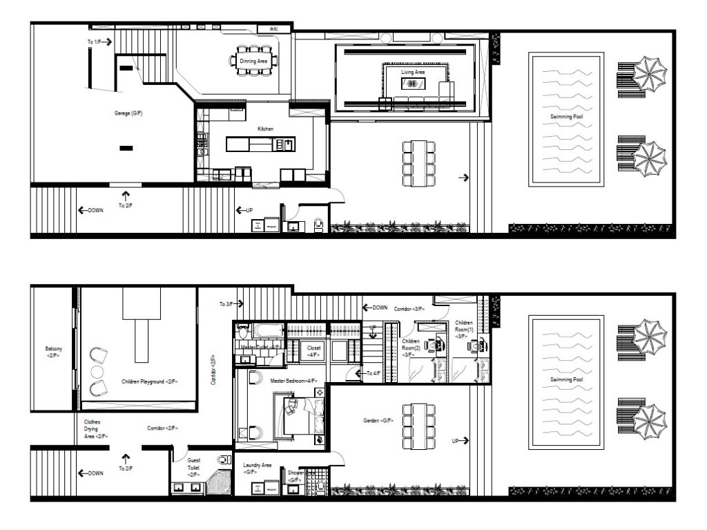
康樂園 Hong Lok Yuen -3000sqft
屋苑名稱 :
康樂園
項目類型:
住宅
居住人數:
5-6
面積 :
3000平方尺
風格:
華麗
設計師:
D WONG
現代時尚。休閒童趣
空間自然採光,環境寬敞宜居,採用簡潔裝飾,滿足日常休閒,純白牆面延續整個空間的層次感,大面積的高櫃滿足收納需求,趣味橫生的兒童房,再加入露天泳池,將休閒與家庭巧妙結合,打造富有生活氣息的現代空間。
[30ft
2
]
睡房
[22ft
2
]
洗手間
[28ft
2
]
客飯廳
[15ft
2
]
廚房
雅舍352期-2020年月刊-K City (3房單位)
[ 報章雜誌 - 雅舍 ]
帝峰皇殿 The Hermitage -1552sqft
[ 住宅 ]
Related Projects
逸瓏灣 Mayfair By The Sea – 1400sqft
住宅
海怡半島 South Horizons – 940sqft
住宅
匯璽 Cullinan West – 1359sqft
住宅
Select Language
Arabic
Chinese (Simplified)
Chinese (Traditional)
Dutch
English
French
German
Hindi
Italian
Japanese
Portuguese
Russian
Spanish